Personal Projects
Work
Contact
Personal Projects
Work
Contact
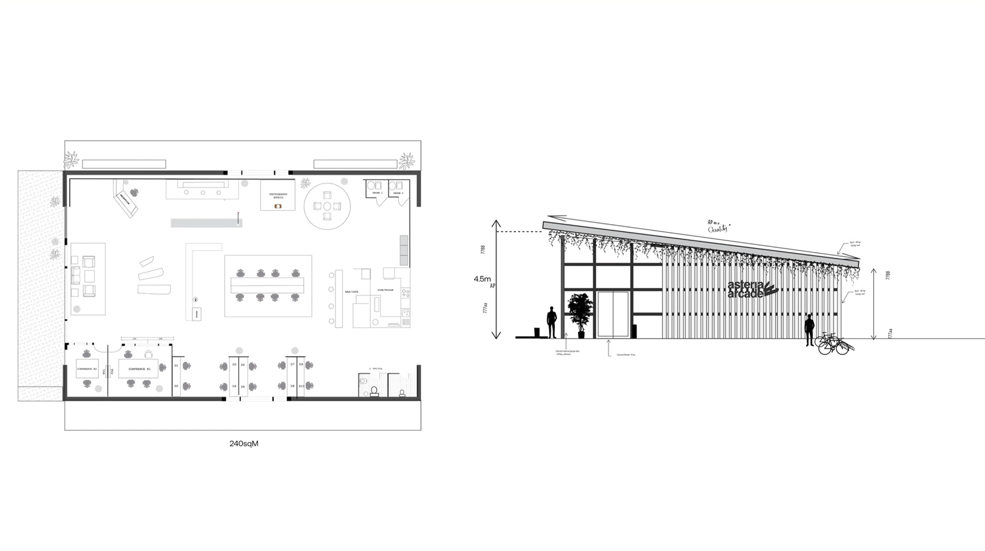
Asteria Arcade
You may also like
Motion Graphics
2023
UI
2023
Branding
2023
Second Wind (Clothing Brand)
2024
Video
2023
Heritage Homes
2024
Photography
2023
Editorial
2023
↑
Back to Top